O projektu
Nabídka bytů
Lokalita
Finanční informace
Galerie
Fotky domu
Fotky půdoris
Fotky bytů
Nákresy domu
Fotky okolí
Dokumentace
Kontakt
Zajímavosti
Dispozice bytů
HOME
/
Dispozice bytů
Neaktivní
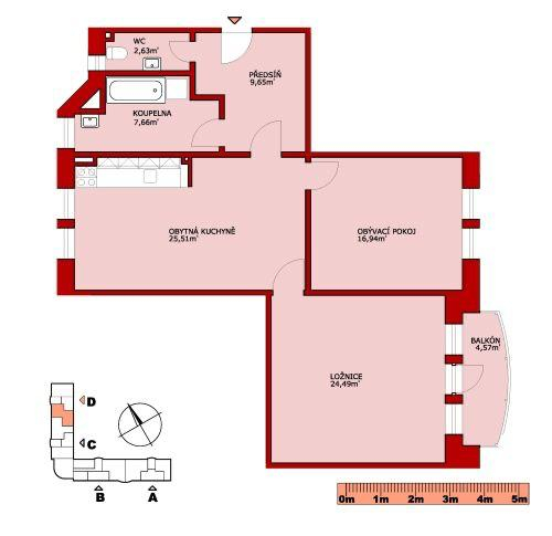
Byt 1
Byt číslo 1 je moderní a prostorný byt v nově postaveném domě, který nabízí komfortní bydlení s otevřeným ...
Neaktivní
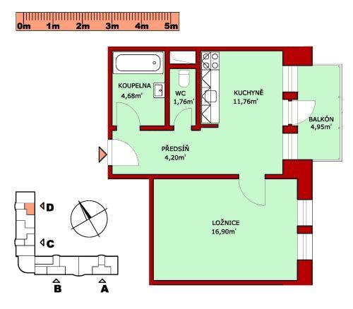
Byt 2
Neaktivní
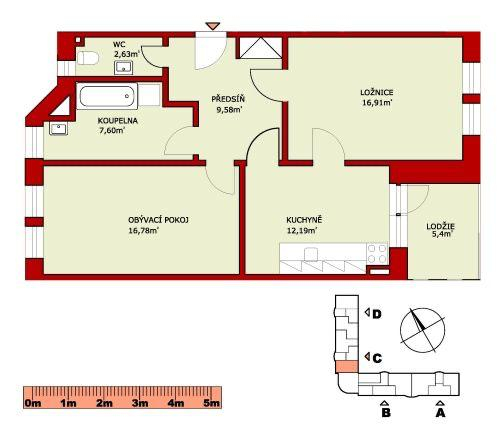
Byt 3
Neaktivní
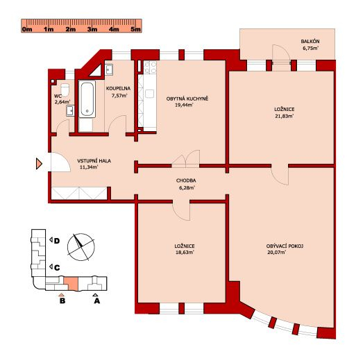
Byt 4
Neaktivní
Byt 5
Neaktivní
Byt 6
Neaktivní
Byt 7
Neaktivní
Byt 8
Neaktivní
Byt 9
Neaktivní
Byt 10
načítám další položky ...
Přihlášení
Nemáte účet. Zaregistrujte se
Zapomenuté heslo ?